3 Bedroom
4 Bathroom
4,263 ft2
Fireplace
Inground Pool
Central Air Conditioning
Forced Air
Acreage
$2,225,000
Welcome to 360 Robinson Road — a fully renovated executive home offering over 4,000 sq ft of living space on a 2.6-acre lot, backing onto the protected conservation lands of Apps Mill. This property blends quiet rural living with modern elegance and incredible outdoor amenities, just minutes from Brantford and Hwy 403. Step onto the striking timber front porch and into a bright, open-concept main floor designed for both entertaining and everyday comfort. The spacious layout seamlessly connects the chef’s kitchen, dining area, and great room, all bathed in natural light from expansive windows and glass doors that frame serene views of the pool, forest, and fields beyond. The custom kitchen features quartz countertops, a 10-ft island, built-in appliances, a wine cellar, and a wet bar. The great room’s natural stone gas fireplace adds warmth and sophistication to the space. Additional main floor highlights include a large laundry/mudroom and a private home office with its own gas fireplace and custom built-ins. The primary suite offers a private walkout deck overlooking the backyard oasis. Three additional bedrooms and beautifully updated bathrooms provide ample space for family and guests. The fully finished lower level expands your living options with a home gym, 2- piece bathroom, sauna, and potential for a wet bar or guest suite. Outside, enjoy resort-style living with a covered porch and two-storey woodburning fireplace, look--out deck, massive pavilion, firepit area, and a stunning in-ground saltwater pool. A heated detached shop with an office adds versatility for a home-based business, hobby space, or storage. Extensive renovations include, new windows and front door, full spray foam insulation, updated electrical, , new appliances and pool equipment, upgraded lighting, trim, and flooring This home is a rare opportunity to own a luxurious retreat surrounded by nature where comfort, style, and privacy come together on a premium conservation lot. (id:63616)
Property Details
|
MLS® Number
|
40823890 |
|
Property Type
|
Single Family |
|
Amenities Near By
|
Schools |
|
Communication Type
|
High Speed Internet |
|
Community Features
|
Quiet Area, School Bus |
|
Features
|
Ravine, Backs On Greenbelt, Conservation/green Belt, Country Residential, Automatic Garage Door Opener |
|
Parking Space Total
|
17 |
|
Pool Type
|
Inground Pool |
|
Structure
|
Workshop |
Building
|
Bathroom Total
|
4 |
|
Bedrooms Above Ground
|
3 |
|
Bedrooms Total
|
3 |
|
Appliances
|
Central Vacuum, Dryer, Freezer, Microwave, Sauna, Water Softener, Water Purifier, Washer |
|
Basement Development
|
Finished |
|
Basement Type
|
Full (finished) |
|
Constructed Date
|
1987 |
|
Construction Style Attachment
|
Detached |
|
Cooling Type
|
Central Air Conditioning |
|
Exterior Finish
|
Brick, Metal, Stone |
|
Fire Protection
|
Smoke Detectors, Alarm System |
|
Fireplace Present
|
Yes |
|
Fireplace Total
|
2 |
|
Fixture
|
Ceiling Fans |
|
Foundation Type
|
Poured Concrete |
|
Half Bath Total
|
2 |
|
Heating Fuel
|
Natural Gas |
|
Heating Type
|
Forced Air |
|
Size Interior
|
4,263 Ft2 |
|
Type
|
House |
|
Utility Water
|
Bored Well, Drilled Well |
Parking
Land
|
Access Type
|
Road Access, Highway Access |
|
Acreage
|
Yes |
|
Fence Type
|
Fence |
|
Land Amenities
|
Schools |
|
Sewer
|
Septic System |
|
Size Frontage
|
236 Ft |
|
Size Total Text
|
2 - 4.99 Acres |
|
Zoning Description
|
Rr |
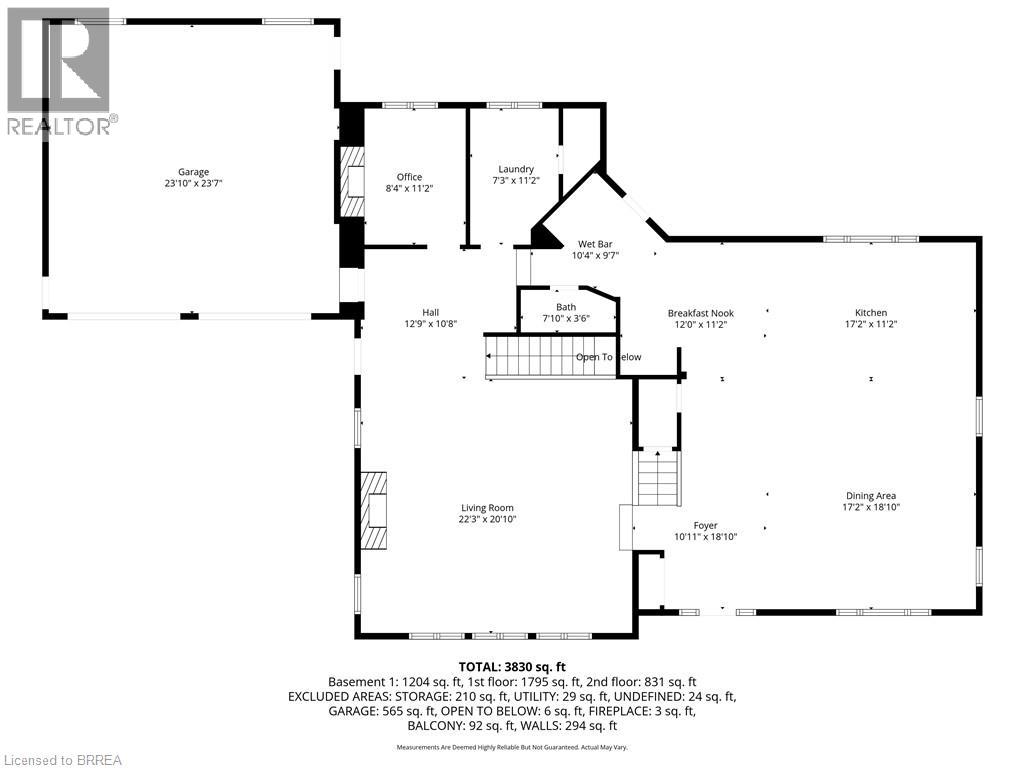
Rooms
| Level |
Type |
Length |
Width |
Dimensions |
|
Second Level |
Porch |
|
|
10'11'' x 9'5'' |
|
Second Level |
5pc Bathroom |
|
|
9'0'' x 8'0'' |
|
Second Level |
Full Bathroom |
|
|
6'0'' x 11'0'' |
|
Second Level |
Bedroom |
|
|
13'0'' x 10'0'' |
|
Second Level |
Bedroom |
|
|
15'0'' x 11'0'' |
|
Second Level |
Primary Bedroom |
|
|
14'5'' x 15'0'' |
|
Lower Level |
Office |
|
|
10'11'' x 10'3'' |
|
Lower Level |
2pc Bathroom |
|
|
Measurements not available |
|
Lower Level |
Exercise Room |
|
|
24'4'' x 5'2'' |
|
Lower Level |
Family Room |
|
|
12'11'' x 21'11'' |
|
Lower Level |
Games Room |
|
|
18'5'' x 20'3'' |
|
Main Level |
Laundry Room |
|
|
9'0'' x 12'0'' |
|
Main Level |
Wine Cellar |
|
|
Measurements not available |
|
Main Level |
Office |
|
|
12'2'' x 9'0'' |
|
Main Level |
2pc Bathroom |
|
|
7'3'' x 3'6'' |
|
Main Level |
Great Room |
|
|
21'1'' x 22'6'' |
|
Main Level |
Dining Room |
|
|
25'0'' x 23'0'' |
|
Main Level |
Eat In Kitchen |
|
|
11'0'' x 26'0'' |
Utilities
https://www.realtor.ca/real-estate/29661226/360-robinson-road-brantford