3 Bedroom
2 Bathroom
1,466 ft2
Bungalow
Fireplace
Central Air Conditioning
Forced Air
$615,000
Nestled on a quiet, mature street, 31 Willow Drive combines timeless charm with thoughtful updates. The sunlit living room features original hardwood floors and an inviting fireplace (electric) open to the kitchen (eat-in dining room), 2+1 bedrooms and 2 fully updated bathrooms. A newly renovated basement expands your living options with fresh, modern finishes. Outdoors is an oversized fenced yard offers privacy, large deck, gas BBQ hook-up and room to play ,double car driveway, while the one-car garage adds everyday convenience. With close proximity to Hwy 403, the Wayne Gretzky Centre, schools, city transit, shopping and scenic parks, this home offers an ideal balance of tranquility and accessibility. (id:63616)
Property Details
|
MLS® Number
|
40820336 |
|
Property Type
|
Single Family |
|
Amenities Near By
|
Hospital, Park, Place Of Worship, Playground, Public Transit, Schools, Shopping |
|
Community Features
|
Community Centre, School Bus |
|
Equipment Type
|
Rental Water Softener, Water Heater |
|
Features
|
Paved Driveway |
|
Parking Space Total
|
7 |
|
Rental Equipment Type
|
Rental Water Softener, Water Heater |
|
Structure
|
Porch |
Building
|
Bathroom Total
|
2 |
|
Bedrooms Above Ground
|
2 |
|
Bedrooms Below Ground
|
1 |
|
Bedrooms Total
|
3 |
|
Appliances
|
Dryer, Refrigerator, Water Softener, Washer, Microwave Built-in, Gas Stove(s), Window Coverings |
|
Architectural Style
|
Bungalow |
|
Basement Development
|
Finished |
|
Basement Type
|
Full (finished) |
|
Constructed Date
|
1950 |
|
Construction Style Attachment
|
Detached |
|
Cooling Type
|
Central Air Conditioning |
|
Exterior Finish
|
Vinyl Siding |
|
Fireplace Fuel
|
Electric |
|
Fireplace Present
|
Yes |
|
Fireplace Total
|
1 |
|
Fireplace Type
|
Other - See Remarks |
|
Fixture
|
Ceiling Fans |
|
Foundation Type
|
Poured Concrete |
|
Heating Fuel
|
Natural Gas |
|
Heating Type
|
Forced Air |
|
Stories Total
|
1 |
|
Size Interior
|
1,466 Ft2 |
|
Type
|
House |
|
Utility Water
|
Municipal Water |
Parking
Land
|
Access Type
|
Highway Access |
|
Acreage
|
No |
|
Land Amenities
|
Hospital, Park, Place Of Worship, Playground, Public Transit, Schools, Shopping |
|
Sewer
|
Municipal Sewage System |
|
Size Depth
|
142 Ft |
|
Size Frontage
|
60 Ft |
|
Size Irregular
|
0.2 |
|
Size Total
|
0.2 Ac|under 1/2 Acre |
|
Size Total Text
|
0.2 Ac|under 1/2 Acre |
|
Zoning Description
|
R1a |
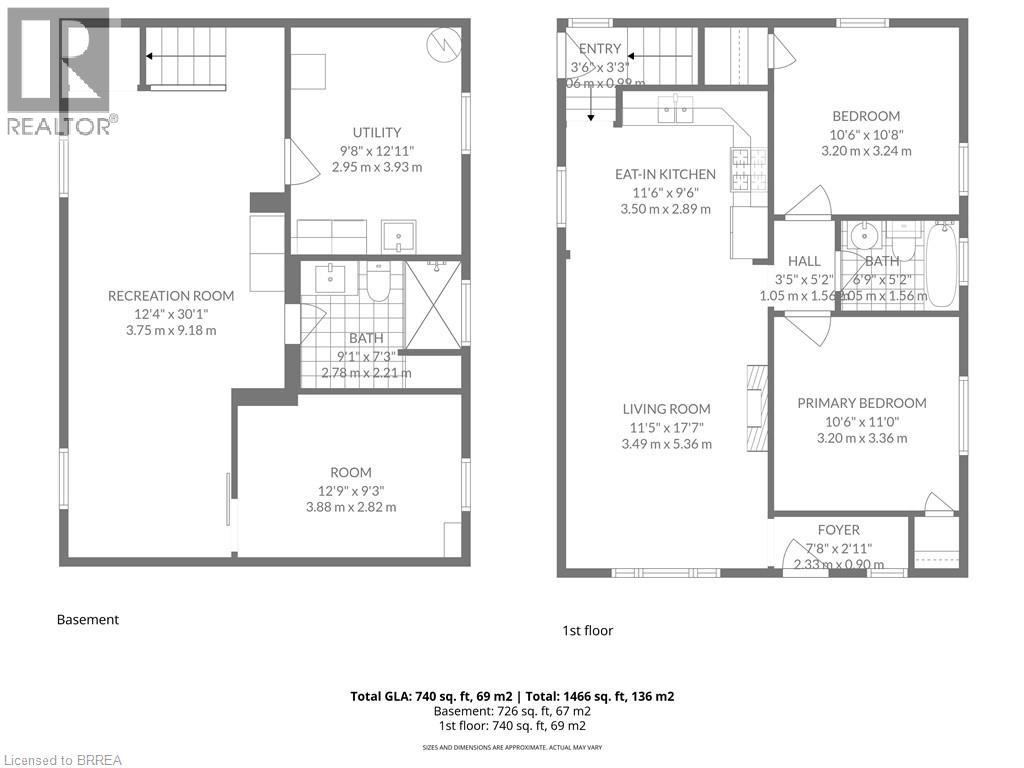
Rooms
| Level |
Type |
Length |
Width |
Dimensions |
|
Basement |
3pc Bathroom |
|
|
Measurements not available |
|
Basement |
Recreation Room |
|
|
30'1'' x 12'4'' |
|
Basement |
Bedroom |
|
|
12'9'' x 9'3'' |
|
Basement |
Laundry Room |
|
|
12'11'' x 9'8'' |
|
Main Level |
4pc Bathroom |
|
|
Measurements not available |
|
Main Level |
Bedroom |
|
|
11'0'' x 10'6'' |
|
Main Level |
Primary Bedroom |
|
|
10'8'' x 10'6'' |
|
Main Level |
Kitchen/dining Room |
|
|
11'6'' x 9'6'' |
|
Main Level |
Living Room |
|
|
17'7'' x 11'5'' |
https://www.realtor.ca/real-estate/29597827/31-willow-drive-brantford